Kopi af Martin's GF2 Turbo - 23. Jan 2026
Emneoversigt
-
Menu
You are currently viewing this course as Gæster.
-
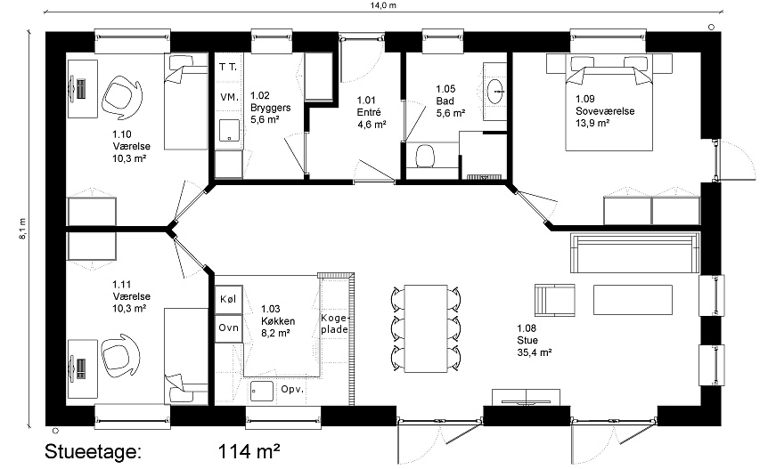
Plantegning
-
I forbindelse med grundforløbseksamen (GF2) som elektriker skal du besvare et skriftligt eksamenssæt, og én type opgave, der altid er med i sættet omhandler installationstegning, hvor du skal påføre det nødvendige antal ledere i de viste tændingssystemer. Denne video gennemgår et eksempel på en sådan opgave.
-
Denne video omhandler installationstegning, hvori jeg deler mine tanker omkring de overvejelser, man bør gøre, når man vil lave en installationstegning forud for det praktiske arbejde iværksættes.
-
Du kan udføre plantegninger i PcSchematic.
-
Her er en samling af tomme plantegninger, som du kan bruge til dine noter eller delprojektet.
-
En samling af alle Illustrationer jeg har brugt.